Офис продаж: пн-пт с 8.30 до 17.30
г.Тюмень, ул.Кирова, 43/1, 5 этаж
+7 (3452) 63-88-42
Обратный звонок

Кирова 43 к.1

Адрес: г.Тюмень, ул.Кирова, 43 к.1
Район: Центральный
Этаж: Мансардный
Площадь: 230,8
Цена за кв.м.:
800 руб
Цена за аренду:
184 640 руб. в месяц

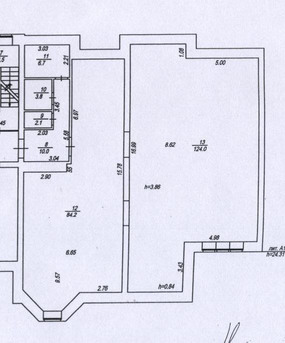
      Нежилое помещение расположено на мансардном этаже 7-ми этажного офисного здания в кирпичном исполнении. Центральный вход с ул. Кирова. В здании два лифта.  Парковка для посетителей на прилегающей территории  со стороны фасада. Помещение открытой планировки, состоит из двух частей, площади залов 84,2 и 124 кв.м. 

      Высота потолков 2,35 м  в низкой части и 3,86 м  в высокой части. В помещении выполнена чистовая отделка. Смонтированы потолочные светильники, система кондиционирования, на полу ламинат, межкабинетные двери - пластиковые с остеклением.

        

Развернуть
Помещение Общая площадь Цена Цена за 1 кв.м. Планировка
8 этаж (мансардный) 230.8 м2 184 640 руб 800 руб Посмотреть Заявка на просмотр
Планировка
Поможем подобрать:
+7(904) 496-59-18
Связаться с нами


Коммерческая недвижимость от застройщика по праву востребована и пользуется законным спросом среди предпринимателей.

ООО СЗ «Тюменгазстрой» – одна из старейших тюменский строительных компаний, которая ежегодно возводит тысячи квадратных метров жилой и нежилой недвижимости. Стремление обеспечить регион доступным жильем привело к появлению на его территории  современных жилых комплексов. Каждый такой комплекс представляет собой один или несколько многоэтажных жилых домов. На первом этаже каждого из них, как правило, спроектированы торгово-офисные помещения, предназначенные для продуктовых  магазинов, банков, аптек, кофеен, парикмахерских, офисов компаний и других объектов социально-культурного назначения.

Нежилое помещение для бизнеса можно приобрести несколькими способами :

♦ выплатив полную  стоимость;

♦оформив кредит - застройщик сотрудничает с российскими банками, каждый из которых готов предложить  выгодные условия получения кредита. 

Стоимость коммерческих помещений зависит от их расположения и степени готовности.

+7 (3452) 63-88-42
Адрес сайта: tgs72.ru
Жилой комплекс «Серебряные ключи-2»
ул.Малая Боровская, 28, к.1
(
I очередь строительства
)
Планировка квартиры:
Квартира на плане этажа:
Квартира №7
Кол-во комнат: 2
Этаж: 10
Подъезд: 3
Площадь: 55,25 м2
Площадь кухни: 29,00 м2
Цена за м2: 140 000 руб
Цена: 10 750 000 руб
10 980 000 руб
Офис продаж

Адрес: г.Тюмень, ул.Кирова, 43/1, 5 этаж

Тел.: +7 (3452) 63-88-42

E-mail: r-stroy@bk.ru

Часы работы:

Пн-пт: 08:30-17:30

(консультации по тел.: 585-936 с 17:30-20:00)

сб - показ объектов по предварительной записи;

вс - выходной.